Söğüt – History and Nature Encounter Architectural Competition Awarded Purchase Prize
2023







About the Project
This proposal was awarded a Purchase Prize for reimagining the entrance to Söğüt. The objective was to create a landmark that serves as a bridge between the town's deep historical roots and its natural landscape. We aimed to transform a simple transit point into a meaningful encounter for both locals and visitors.
The design prioritizes context-sensitive architecture. We sought a delicate balance: respecting traditional cultural heritage while introducing contemporary design solutions. The focus was on creating a space that feels native to the location yet modern in its execution, ensuring the concept remained grounded in reality and technical feasibility.
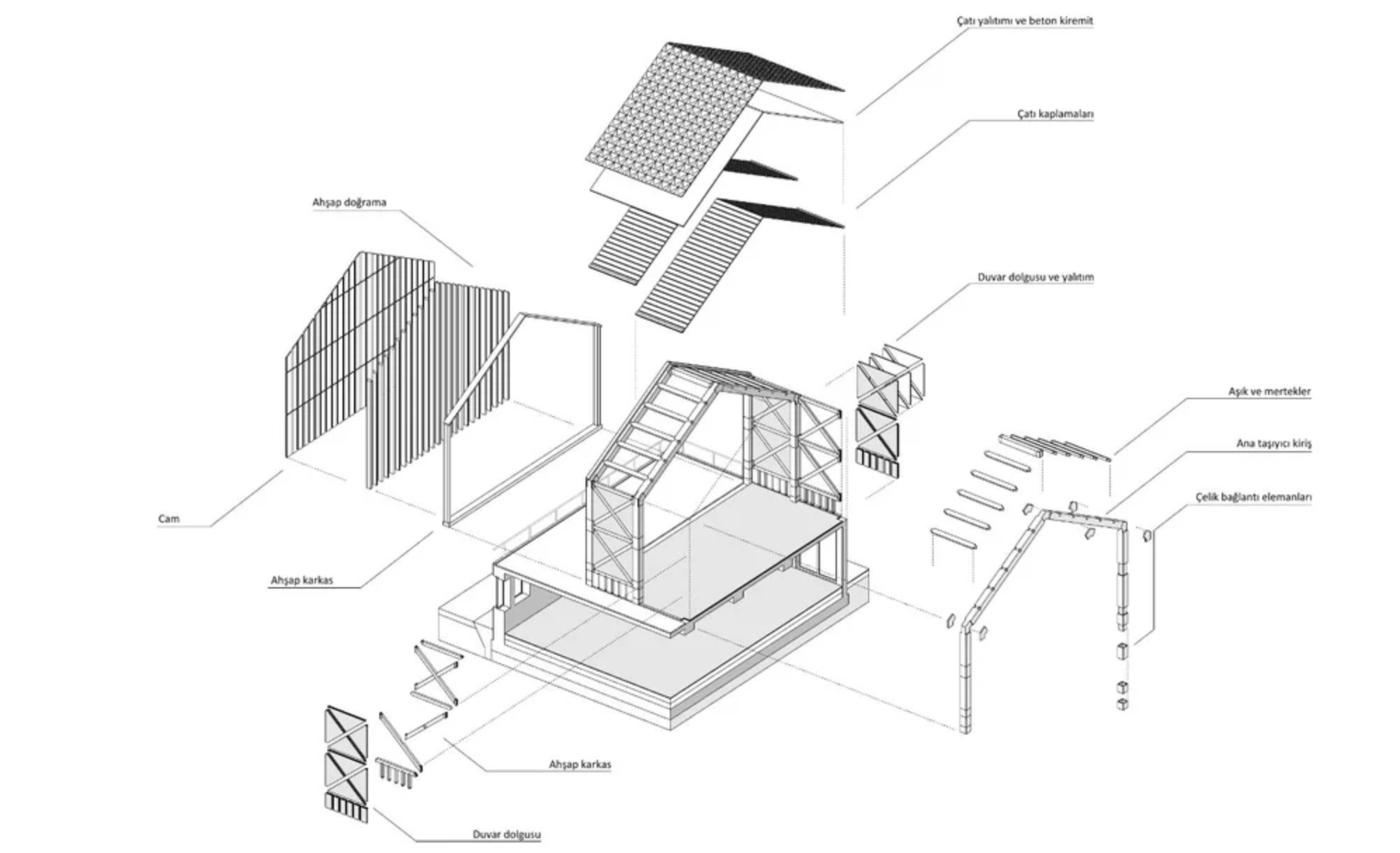
Process & Details

Detailed view of the main structural elements during the installation phase.

Material selection closeup.

Joint details and finishing touches.

Final construction view from the seaside facade.